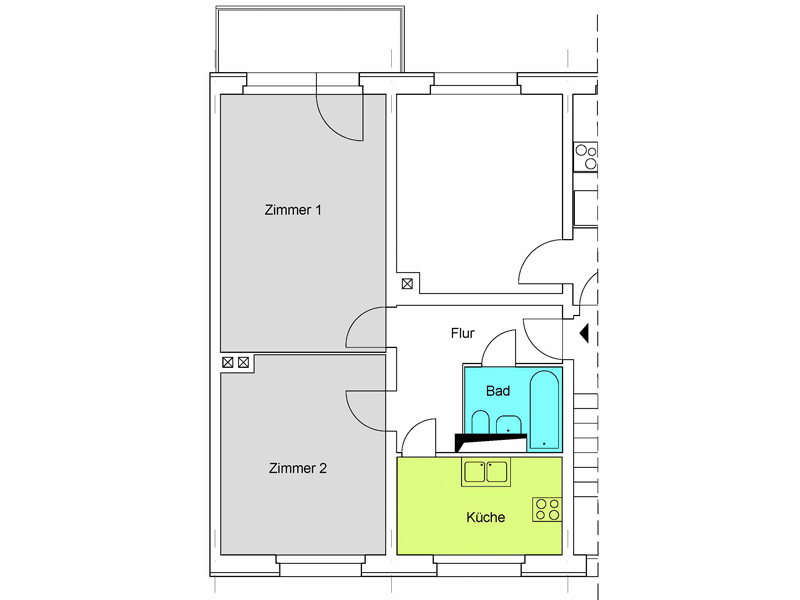
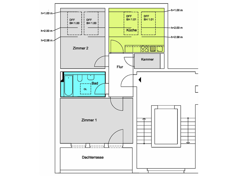
Rund zwei Drittel des Wohnungsbestandes unserer Genossenschaft wurde im Bautyp Q3A (Querwandtyp, Variante A) errichtet. Gebaut in den 1960er Jahren zeichnen sich diese Wohnungen durch optimal geschnittene Räume aus. In der Baureihe Q3A stehen unseren Mitgliedern 1- bis 4-Zimmer-Wohnungen mit einer Fläche von ca. 29 m² bis ca. 70 m² zur Verfügung.
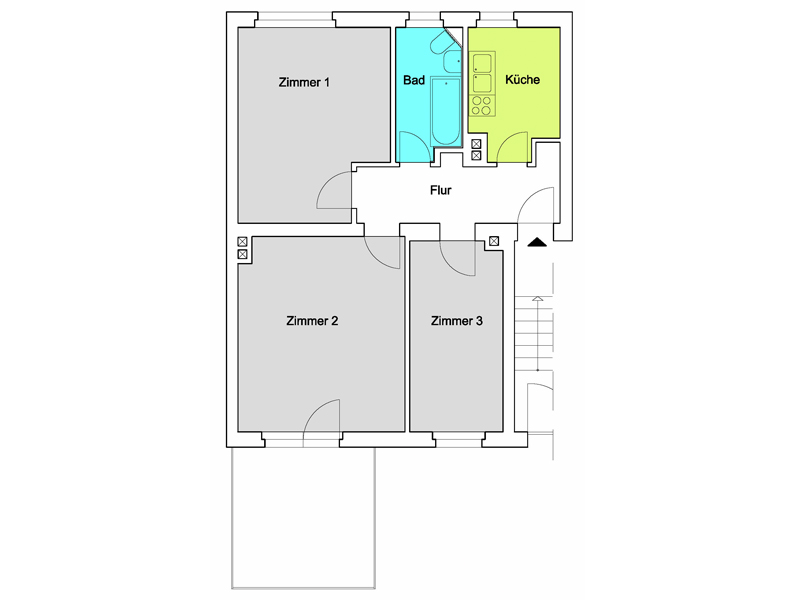
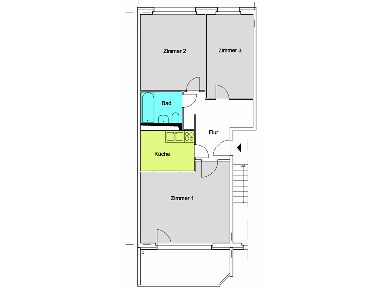
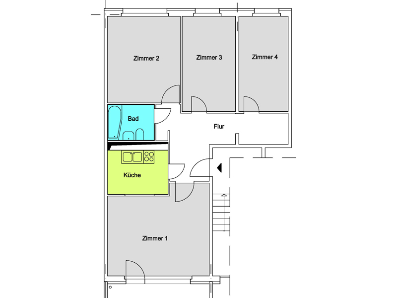
Neben dem Q3A-Bautyp entstanden einige unserer Wohnungen in traditioneller Bauweise (TB) in den 1950er Jahren. Diese Wohnungen überzeugen durch ein Bad mit Fenster und ebenfalls optimal geschnittenen Wohnräumen. Wohnungen in dieser Baureihe sind vorrangig in den Größen 1 Zimmer mit ca. 34 m² bis 4 Zimmer mit ca. 85 m² vorhanden.
Einen weitaus kleineren Teil unseres Bestandes stellt die Bauweise WBS 70 (Wohnungs-Bauserie 70) mit 258 Wohnungen dar. Hier gibt es 2- bis 4-Zimmerwohnungen mit einer Fläche von ca. 50 m² bis ca. 75 m², welche im Ortsteil Alt-Treptow zu finden sind.
Der erste Neubau unserer Genossenschaft in der „Nachwendezeit“ wurde als Lückenbau in der Schraderstraße 14 mit 15 Vier- und Zwei-Zimmerwohnungen errichtet.
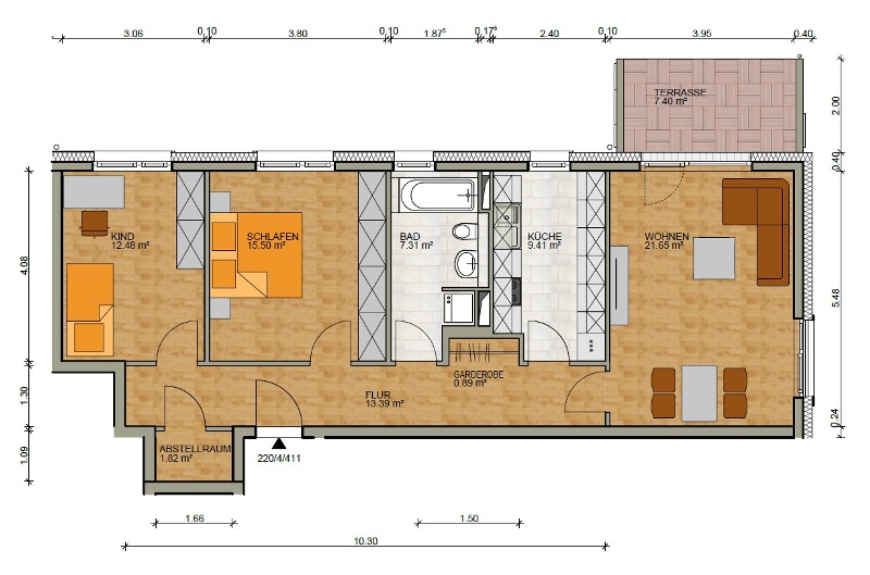
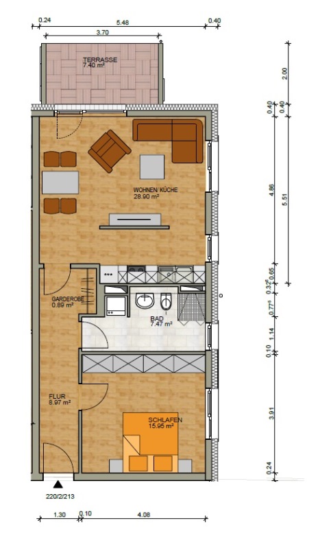
Im Jahre 2015 konnte das „HeidekampEck” im Treptower Ortsteil Baumschulenweg mit insgesamt 108 Wohnungen in den Größen 1,5 Zimmer (ca. 47 m²) bis 5 Zimmer (ca. 140 m²) fertiggestellt und an unsere Mitglieder übergeben werden.
Ende 2017 wurde das „HumboldtEck“ im Treptower Ortsteil Adlershof fertiggestellt und insgesamt 61 Wohnungen an unsere Mitglieder übergeben.
In 2024 konnten die ersten Mitglieder im „EichbuschKarree” einziehen. Hier entstanden in der Eichbuschalle 9A, 9F, 9G im Ortsteil Plänterwald 64 barrierearm erreichbare Wohneinheiten. Davon 32 barrierefreie 2-, 3- und 4-Zimmer-Wohnungen, verteilt auf 5 Geschosse plus Staffelgeschoss mit 3 Aufgängen und einem begrünten Innenhof mit Kinderspielbereich.



